Inspirace Produkty Servis Výhody O firmě Kontakt
Inspirace Reference PREFA konfigurátor střechy & fasády Fotomontáž Stavební Tipy
Produkty Střecha Fasáda Odvodnění střech Solar Protipovodňová ochrana Svitky & Plechy
Servis PREFA konfigurátor střechy & fasády Fotomontáž Objednat prospekty Nabídka na míru Montážní firma ve vašem okolí Vyžádání záručního certifikátu Veletrhy Otázky a odpovědi Pro realizační firmy Pro architekty
Výhody Materiál hliník Speciální témata
O firmě O nás Nabídka pracovních míst Aktuality Pro tisk
Kontakt Kontakty - PREFA Tým Ozveme se vám zpět! Objednat prospekty Přihlásit se k odběru novinek
Reference Referenční objekty Špičková architektura Galerie sanací
Stavební Tipy Rekonstrukce střechy Rekonstrukce fasády Ztvárnění fasády Fasády ze dřeva a hliníku Střešní krytina pro každý tvar střechy Fotovoltaika jednoduše vysvětlená Hliníková střecha s optikou pálené tašky
Pro realizační firmy Portál pro řemeslníky / MÁ PREFA - přihlášení Webshop PREFA Academy Školicí program - termíny Montážní příručka & Videa Propagační materiály, logo, vzorová objednávka
Pro architekty Zobrazit PREFARENZEN Objednat knihu a šanon pro architekty Centrum pro stahování BIM
Materiál hliník Záruka 40 let Udržitelnost Kompletní systém Odolné proti větru
Speciální témata Požární bezpečnost Ochrana památek
O nás Čísla a fakta Naše hodnoty a cíle Udržitelnost
Objednat prospekty Nabídka na míru Má PREFA
Délka stěnového profilu
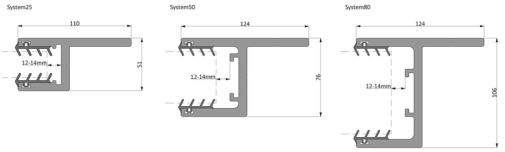
Systém 25
Systém 50
Systém 80
750 mm
4
1350 mm
7
1750 mm
9
2150 mm
11
Minimální průměr upevňovacího prostředku
8 mm
10 mm
Lze stáhnout pouze obsah z jedné kategorie produktů. Pokud potřebujete obsah z více kategorií, vytvořte prosím pro každou produktovou oblast samostatný soubor ke stažení.