Montážní příručka
Montážní příručka
Vyberte prosím jednu nebo více kapitol ke stažení.
Obsah dokumentu

Možnosti opracování:

Dbejte na minimální rozměry a úhly, které jsou možné z materiálově-technického hlediska. Ostré úhly lze vyrobit od velikosti úhlu 20°. Pokud je velikost úhlu menší než 20°, musí být vrchol úhlu ukončen příčkou alespoň 25 mm.

Vezměte na vědomí, že vyfrézovaná písmena, firemní loga, šířky perforovaných částí apod. jsou přípustné pouze u kompozitních desek PREFABOND s FR jádrem. U desek s A2 jádrem nejsou takovéto úpravy naopak povoleny.

Upozornění

Dbejte na to, abyste při opracování kompozitních desek vždy používali vhodné osobní bezpečnostní a ochranné prostředky.

K dispozici jsou následující možnosti opracování:

Kliknutím na požadovanou možnost opracování přejdete přímo k příslušnému návodu:

Řezání

PREFABOND hliníkové kompozitní desky mohou být opracovávány následujícími nástroji: ruční okružní pilou,
stolní okružní pilou nebo vertikální deskovou pilou a kotoučem na kov. Diamantové kotouče jsou také nejvhodnější pro prodloužení životnosti nástroje. Desky vždy opracovávejte ze zadní strany, abyste chránili lakovanou pohledovou stranu. Výslovně se doporučuje odsávání třísek.

Upozornění

Dbejte na to, aby pilový kotouč během použití řezal s minimem otřepů. Pokud tomu tak není, je nutné pilový kotouč servisovat (nabrousit) nebo případně vyměnit.

Vrtání

Pro mechanické kotvení kompozitních desek je nutné připravit pevné a posuvné body. Otvory vyvrtejte běžnou ruční vrtačkou, stojanovou vrtačkou, vykružovacím vrtákem nebo kruhovým výstružníkem.

Frézování kontur

Se všemi výřezy (např. pro svítidla nebo kliky dveří) si snadno poradíte pomocí běžné horní frézky nebo přímočaré pily. Vodicí šablona vám pomůže při vytváření takových výřezů.

Upozornění

Složité výřezy, jako jsou písmena, firemní loga apod., dokáže společnost PREFA realizovat přímo ve výrobě pomocí CNC frézky. Obrys je nutné dodat v souboru DWG nebo DXF.

Frézování V drážky

Ostění a rohy lze pomocí techniky frézování „V“ drážek provést jak jako vnitřní roh, tak také jako vnější roh. K tomu se používají drážkovací frézy na „V“ drážky s úhlem otevření 90° a 135°.

Ohýbejte kompozitní desku PREFABOND s FR jádrem při min. 5 °C a s A2 jádrem při min. 20 °C teploty materiálu i okolí, abyste předešli prasklinám na lakované pohledové straně.

Společnost PREFA doporučuje, aby se zejména u kompozitních desek s A2 jádrem frézování „V“ drážek provádělo pouze pomocí CNC obráběcího stroje, aby byla zajištěna správná hloubka frézování.

Pokud se ohýbání provádí při nízkých teplotách (≤ 15 °C), může to způsobit závojovitý vzhled povrchové úpravy. K eliminaci tohoto jevu zahřejte desku na min. 20 °C.

Hloubky frézování pro ohyby

Pro ohyb potřebná „V“ drážka se vždy frézuje na zadní straně desky, a to bez ohledu na to, zda jde o vnitřní nebo vnější roh. Správné frézování „V“ drážky je nutné provést tak, aby na jedné straně zůstalo 0,5 mm krycího plechu (lakovaná pohledová strana) a na druhé straně v jádru dalších 0,2 až 0,4 mm (FR jádro), resp. dalších 0,15 až 0,25 mm (A2 jádro).

Obvyklé je použití drážkovacích fréz s úhlem otevření 90° nebo 135°.

Pokud je „V“ drážka částečně nebo zcela vyfrézována příliš hluboko, není možný estetický ohyb s konstantním poloměrem. Kromě toho může krycí hliníkový plech na pohledové straně popraskat. Pokud však „V“ drážka není vyfrézována dostatečně hluboko, je ohýbání proveditelné jen velmi ztuha. Osa ohybu ve „V“ drážce leží vždy uprostřed zploštělé části frézované drážky.

Nezapomeňte, že kompozitní desky po ohnutí mají určitou zpětnou pružnost. V praxi to znamená, že je nutné je ohnout o něco více, než je požadováno, aby po zpětném pružení bylo dosaženo perfektní rozměrové přesnosti. Nejmenší možná délka ramene ohybu je 20 mm.

Upozornění

Při stanovení správného odvíjení desky vezměte v úvahu, že u montáže lepením je nutné započítat tloušťku lepicího systému. Podle toho, zda se jedná o vnější nebo vnitřní vodní drážku na zadní straně, tuto tloušťku (obvykle: 3 mm) přičtěte k lepicímu systému předepsanému výrobcem lepidla, resp. od něj odečtěte.

Níže uvedené příklady lze použít jako vodítko. Obrázky pokaždé znázorňují mechanické kotvení.

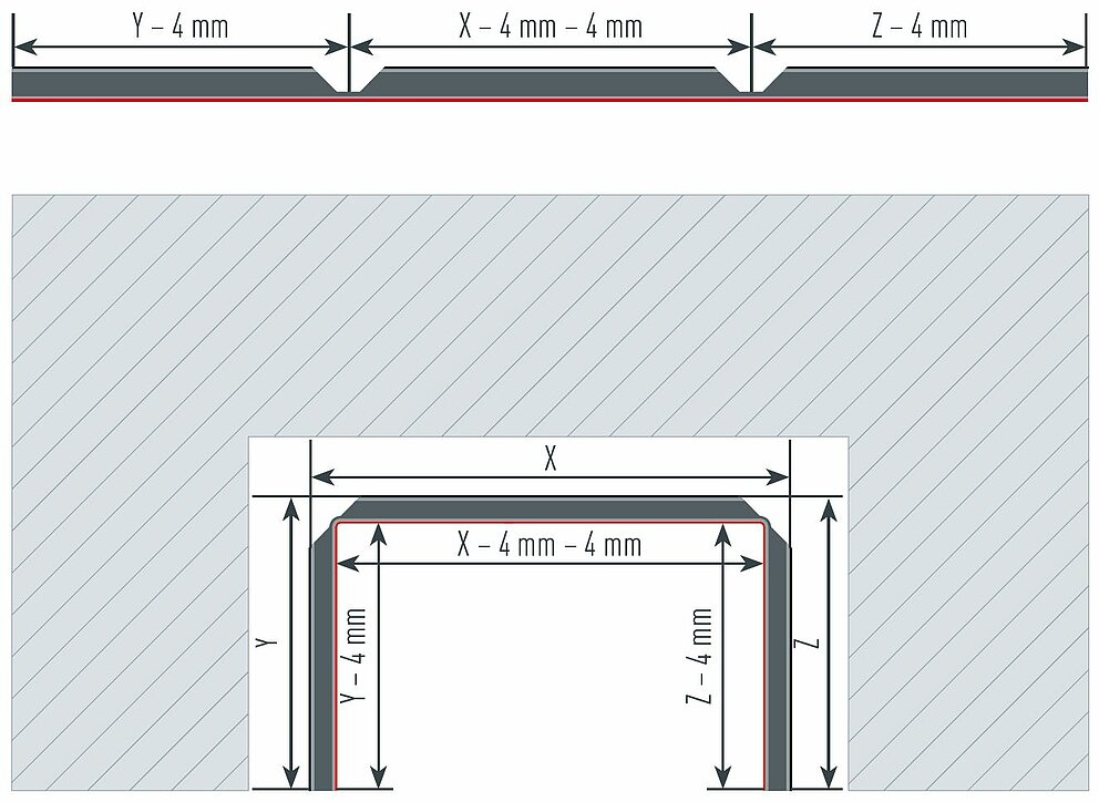
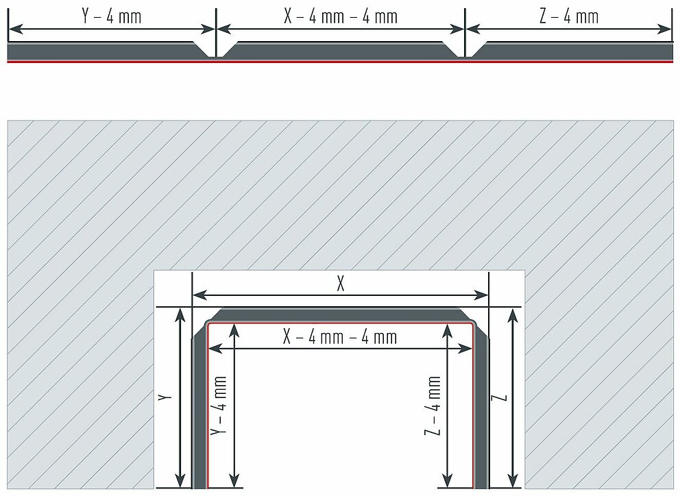
vnitřní roh

U vnitřního rohu je nutné tloušťku materiálu kompozitní desky (4 mm) odečíst od naměřených přirozených rozměrů.

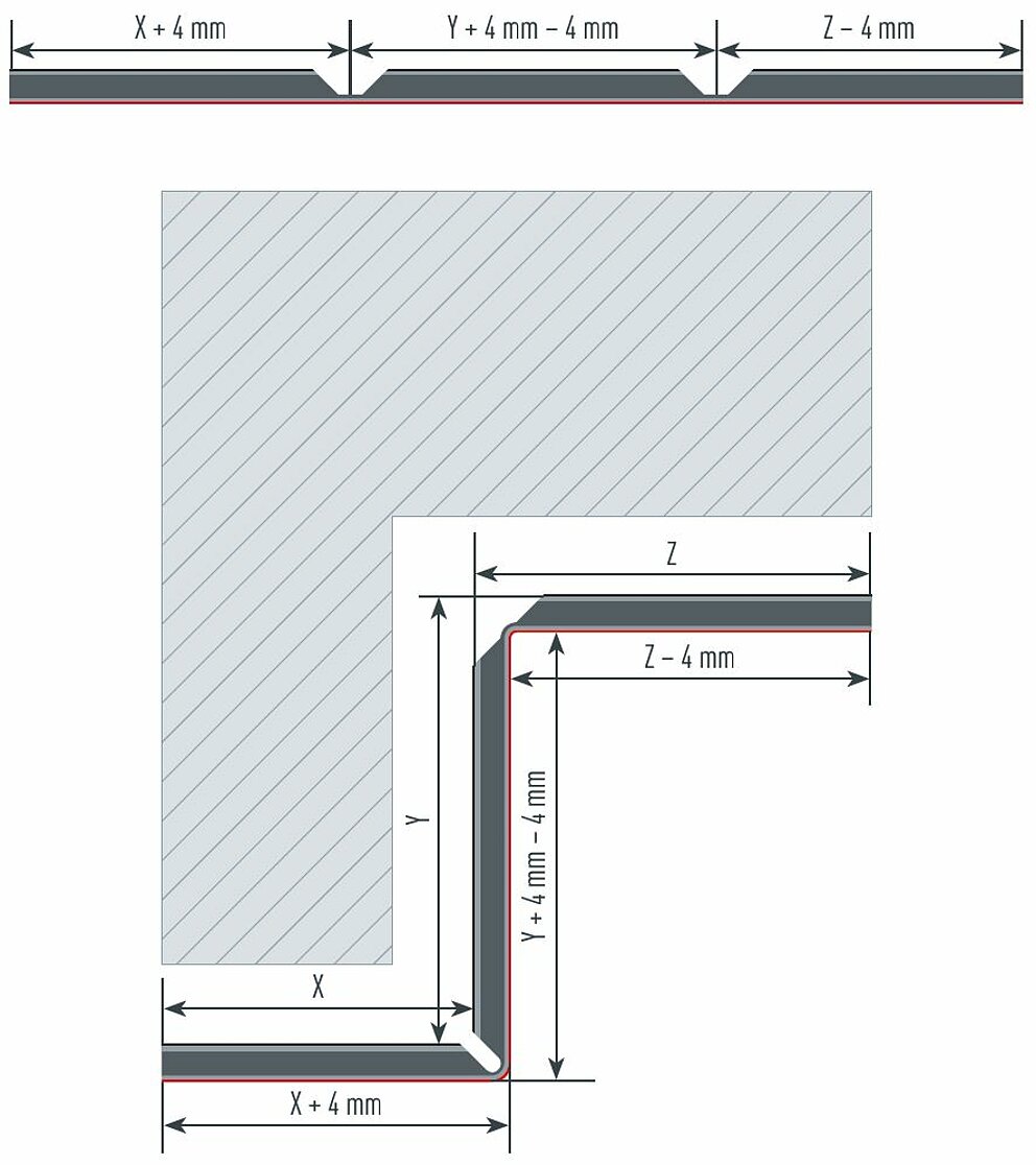
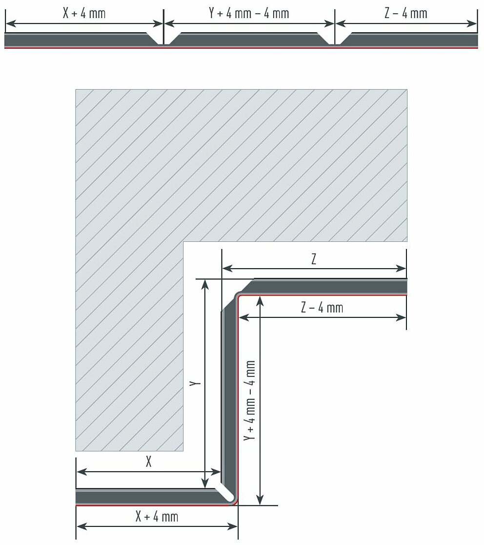
vnější roh

U vnějšího rohu je nutné tloušťku materiálu kompozitní desky (4 mm) k naměřeným přirozeným rozměrům přičíst.

U-ohyb (vnější)

U U-ohybu se dvěma vnějšími rohy se každý roh posuzuje samostatně. Aby se dosáhlo správné frézovací osy, musí být ke každému rameni přičtena tloušťka materiálu (4 mm).

U-ohyb (vnitřní)

U U-ohybu se dvěma vnitřními rohy se každý roh posuzuje samostatně. Aby se dosáhlo správné frézovací osy, musí být od každého ramene odečtena tloušťka materiálu (4 mm).

Z-ohyb

U Z-ohybu s jedním vnitřním a jedním vnějším rohem se každý roh posuzuje samostatně. Aby se dosáhlo správné frézovací osy, musí být u vnitřního rohu od každého ramene odečtena tloušťka materiálu (4 mm) a u vnějšího rohu ke každému rameni přičtena.

Perforování

Perforované kompozitní desky PREFABOND mají rovnoměrnou rozteč otvorů. Vzhledem k minerální struktuře jádra se perforace pomocí vysekávacích strojů pro PREFABOND s A2 jádrem nedoporučuje.

  • Při speciální poloze (např. blízkost moře, znečištěný vzduch) postupujte při plánování a realizaci obzvláště pečlivě.
  • Perforaci lze provést frézou nebo revolverovým děrovacím strojem.
  • Při návrhu rozteče otvorů zohledněte také kotvicí body a sníženou nosnost.
  • Maximální podíl otvorů: 50 %
  • Válcové ohýbání perforovaného materiálu PREFABOND je nutné v jednotlivých případech konzultovat s oddělením produktové techniky PREFA.

Uspořádání otvorů

Šířka otvoru [w]

Rozteč [t]

Otevřená plocha [%]

Perforování – kruhové otvory, přímé

20 mm

40 mm

19,6 %

Perforování – kruhové otvory, střídavé

5 mm

10 mm

22,6 %

Perforování – kruhové otvory, střídavé

6 mm

10 mm

32,6 %

Perforování – kruhové otvory, střídavé

7 mm

10 mm

44,4 %

Perforování – kruhové otvory, střídavé

7 mm

12 mm

30,8 %

Perforování – kruhové otvory, střídavé

8 mm

12 mm

40,2 %

Perforování – kruhové otvory, střídavé

8 mm

16 mm

22,6 %

Perforování – kruhové otvory, střídavé

10 mm

15 mm

40,2 %

Perforování – kruhové otvory, střídavé

15 mm

25 mm

32,6 %

R = perforování
g = přímé řady
v = střídavé řady
W = šířka otvoru
t = rozteč

Zakružování

PREFABOND hliníková kompozitní deska může být ohýbána na tří- nebo čtyřválcových ohýbacích strojích. Společnost PREFA nedoporučuje zaoblování na ohraňovacím lise.

  • Nejmenší možný poloměr pro kompozitní desky s FR jádrem: 300 mm
  • Nejmenší možný poloměr pro kompozitní desky s A2 jádrem: 600 mm
  • Pokud se ohýbání provádí při nízkých teplotách (≤ 15 °C), může to způsobit závojovitý vzhled povrchové úpravy. K eliminaci tohoto jevu zahřejte desku na min. 20 °C.
  • U metalických barev je mezi zaoblenou a rovnou plochou v důsledku odlišného úhlu odrazu patrný lehký barevný rozdíl.

Postup

  • Dbejte na to, abyste přítlačné podávací válce nestlačili příliš silně.
  • Ujistěte se, že válce ohýbacího stroje jsou bez cizích materiálů, abyste vyloučili otlaky a kontaktní korozi.
  • Odstraňte z desek případné třísky a otřepy na hranách.
  • Pokud potřebujete v desce „V“ drážku, frézujte ji až po zaoblení, jinak může dojít ke zkreslenému ohybu. To je možné pouze svisle vzhledem k ose zakřivení.
  • Dbejte na to, aby proces zakružování probíhal v několika etapách, a bylo tak možné šetrně ohýbat lak i kompozitní materiál.

Zakružování u společnosti PREFA

Společnost PREFA nabízí zakružování PREFABOND hliníkové kompozitní desky, přičemž je třeba se řídit následujícími informacemi.

V důsledku ohýbání na válcích mají desky na výstupu malou otlačeninu, kterou PREFA odřeže. Dbejte na rozměry surového materiálu! Přířez je totiž na koncích desek o 200 mm větší než efektivně potřebný rozměr oblouku. K rozměru oblouku (s) se na jednom konci přičítá 150 mm a na druhém 50 mm.

Ze strany společnosti PREFA možné

Ze strany společnosti PREFA není možné