Montážní příručka
Montážní příručka
Vyberte prosím jednu nebo více kapitol ke stažení.
Obsah dokumentu

Přehled profilů příslušenství

Vezměte prosím na vědomí, že profily příslušenství byly sladěny s různými hloubkami profilu 22 mm a 32 mm.

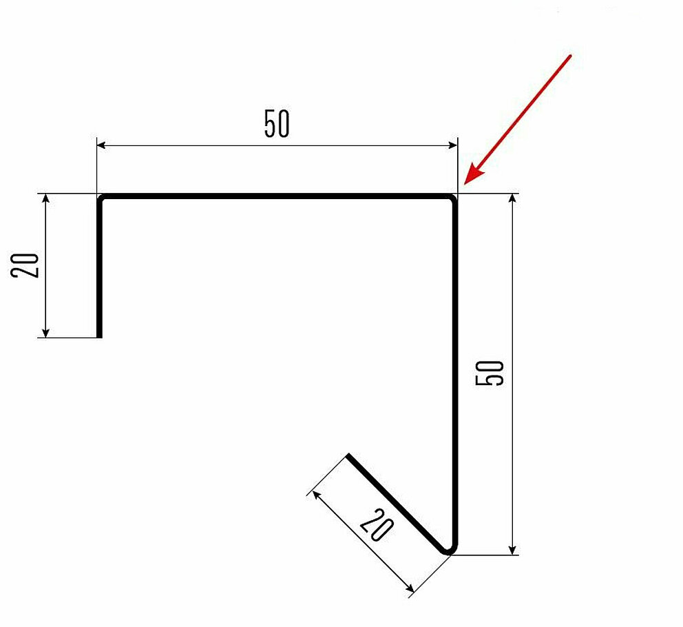
Všechny rozměrové údaje jsou v mm.

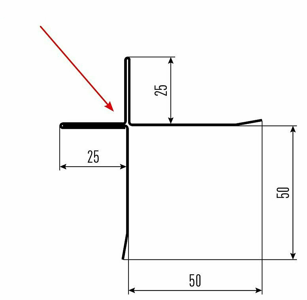
Profily příslušenství – hloubka profilu 22 mm

Červená šipka vždy označuje barevnou stranu profilů příslušenství.

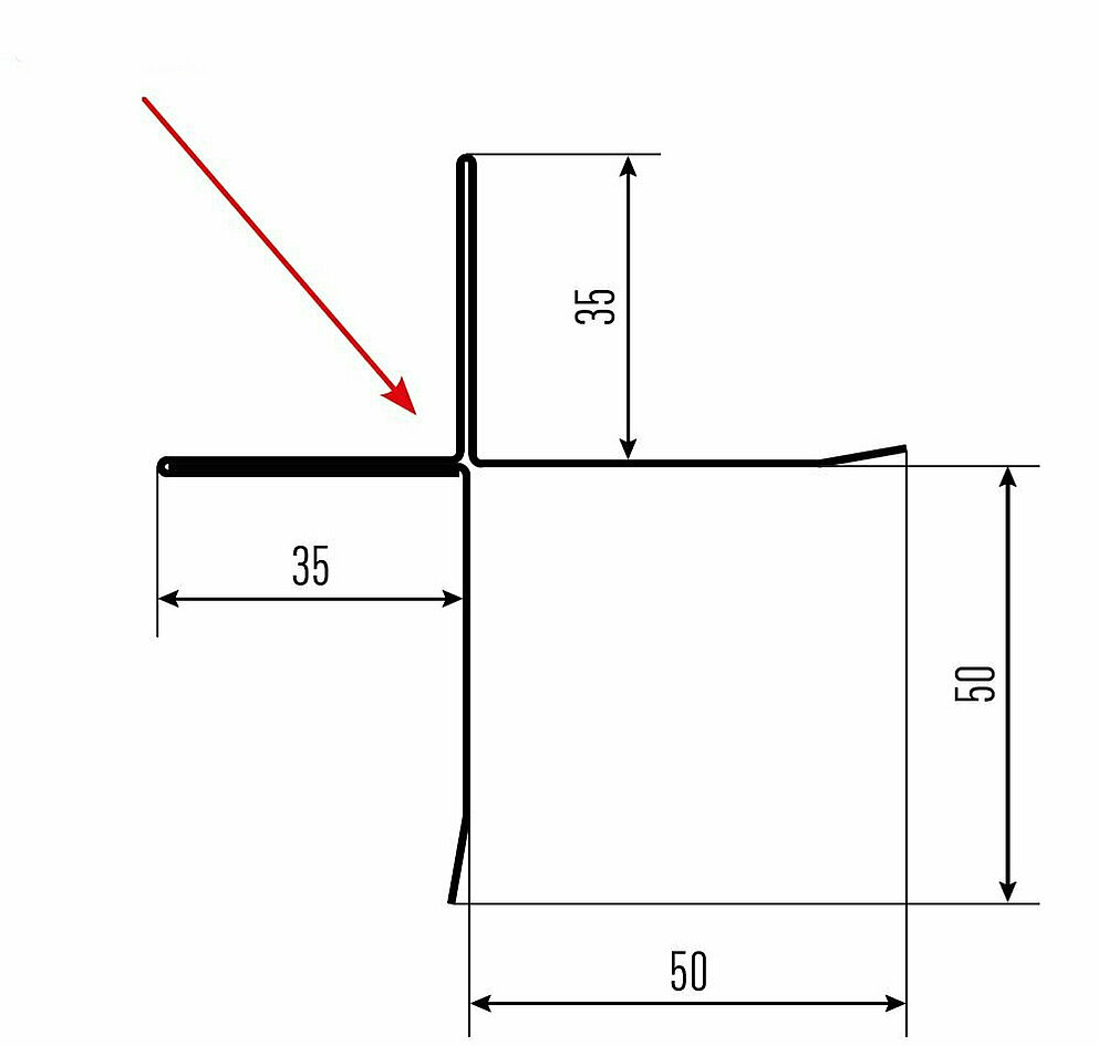
Profily příslušenství – hloubka profilu 32 mm

Červená šipka vždy označuje barevnou stranu profilů příslušenství.

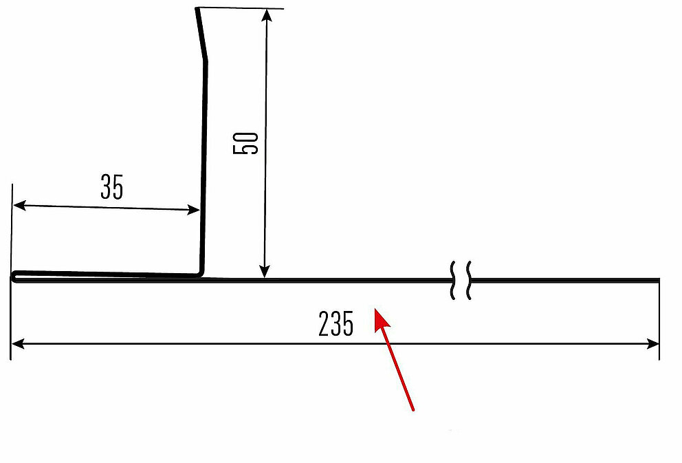
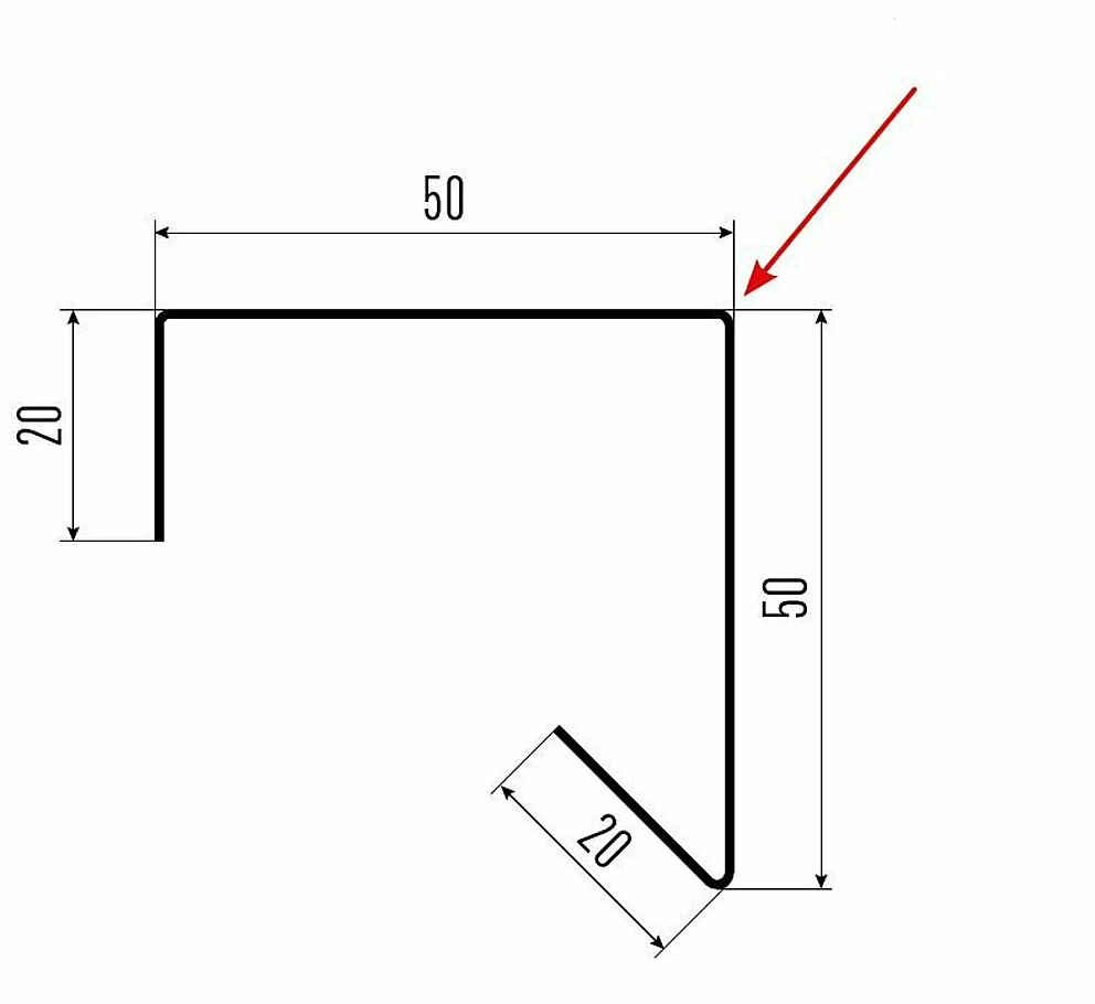
Profily příslušenství nezávisle na hloubce profilu

Červená šipka vždy označuje barevnou stranu profilů příslušenství.